Home
Repertory
Art & Build
European Food Safety Authority Headquarters
- Projet
European Food Safety Authority Headquarters
- Architecte
Art & Build
- Co-author
- Studio Valle Progettazioni
- Programe
- Public Building - conference centre & offices
- About
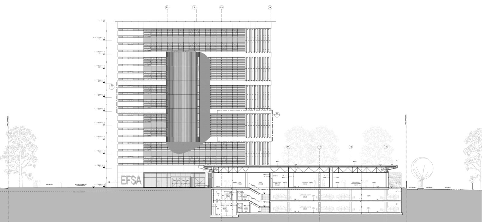
- The site given by Parma Council to the EFSA is located between the inner ring roads (the former ramparts) and the railway line.[...]
The project is based on creating visual access to the city in order to open up the site, linking it to the Parco Ducale in the south and the districts which are under development to the north. To the east and west, it is connected to the residential area. The site and the institution want to be open to the city and its inhabitants.
The EFSA headquarters stand out due to their easily recognisable triangular shape. Apart from this easily identifiable image, the architecture of the building promotes interaction while remaining rational. The offices are treated as spaces for work and dialogue. Urban life penetrates the building.
- Typology
- Civic and community
- Status
- Built
- Year of conception
- 2006
- Year of delivery
- 2011
- Client
- EFSA
- Area
- 16.000
- Stability
- Pool Engineering
- Special techniques
- Tifs Ingegneria
- Landscape
- Art Ambiente Risorse e Territoria
Via Carlo Magno 1A
I-43126 Parma
Plus d'informations
ArtBuild Architects
Repertory
Exposition Virtuelle
Private houses
Culture
Private houses
Culture
Housing (include mixed use)
Private houses
Culture
Housing (include mixed use)
Housing (include mixed use)
Private houses
Culture
Housing (include mixed use)
Housing (include mixed use)Private houses
Housing (include mixed use)
Culture
Culture
Housing (include mixed use)
Private houses
Housing (include mixed use)
Private houses
Housing (include mixed use)Private houses
Private houses
Housing (include mixed use)
Private houses
Housing (include mixed use)
Culture
Housing (include mixed use)
Housing (include mixed use)
Housing (include mixed use)
Culture
Private houses
Culture
Private houses
Housing (include mixed use)
Housing (include mixed use)
Private houses
Culture
Culture
Housing (include mixed use)
Culture
Culture
Housing (include mixed use)
Culture
Housing (include mixed use)
Private houses
Private houses
Private houses
Housing (include mixed use)
Housing (include mixed use)
Private houses
Private houses
Culture
Housing (include mixed use)
Private houses
Housing (include mixed use)
Housing (include mixed use)
Culture
Culture
Private houses
Housing (include mixed use)
Private houses
Culture
Private houses
Housing (include mixed use)
Housing (include mixed use)
Housing (include mixed use)
Culture
Culture
Private houses
Housing (include mixed use)
Culture
Housing (include mixed use)
Housing (include mixed use)
Private houses
Housing (include mixed use)
Projets
- Timber Tower SILVA2015–2018Bordeaux








- URM Purpan - CHU de Toulouse2009–2015Toulouse






- Groupe Chèque Déjeuner Headquarters2006–2010Gennevilliers






- Pierres Vives2005–2012Montepellier


























