Home
Repertory
Aurélie Hachez Architecte
Oriel
- Projet
Oriel
- Architecte
Aurélie Hachez Architecte
- Programe
- 3 stairs family house
- About
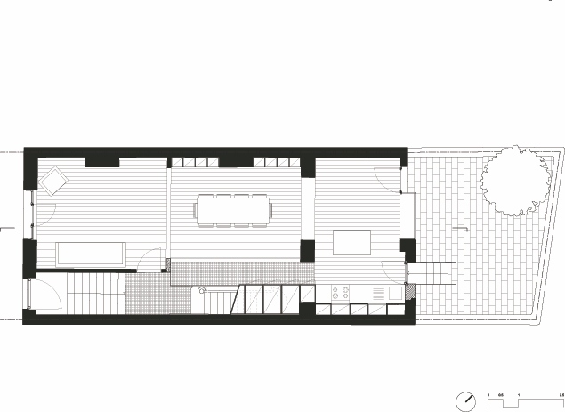
- This townhouse was built in 1900 on semi-buried basements, according to the Brussels “Bel étage” blueprint. The living rooms are therefore half a floor higher than street level and are protected from its activity. The house comprises a courtyard located inside a block, which gives a romantic character to the building despite its original function as a service area. In this configuration, the living spaces composing the “Bel étage” (literally the “beautiful floor”) get from larger on the street side to narrower on the court side, with the living room as the most noble space, then the rather dark dining room, and finally the kitchen divided into two separate rooms. In order to reverse this system and have the roomiest and brightest spaces facing the court, and therefore render its function as a leisure space to the latter, the transversal walls of the “Bel étage” were torn down. In this “romantic” spirit, a bow window aligned with the rear façade was created as an alcove with a view overlooking the courtyard. So as to bring light into the inside areas and create a separation with the entrance hall, a glass wall was placed along the stairwell to disclose the mosaic tiles floor and evoke the original partitioning.[...]
- Typology
- Private houses
- Status
- Built
- Year of conception
- 2013
- Year of delivery
- 2013
- Total budget
- 125 000
- Area
- 190
- Architects
Bruxelles
Plus d'informations
Aurélie Hachez Architecte
Repertory
Exposition Virtuelle
Private houses
Private houses
Private houses
Culture
Private houses
Culture
Private houses
Culture
Housing (include mixed use)
Housing (include mixed use)
Private houses
Housing (include mixed use)
Culture
Culture
Housing (include mixed use)
Private houses
Housing (include mixed use)
Private houses
Private houses
Private houses
Private housesPrivate houses
CulturePrivate houses
Culture
Private houses
Housing (include mixed use)
Private houses
Culture
Culture
Housing (include mixed use)
Private houses
Private houses
Culture
Housing (include mixed use)
Private houses
Culture
Private houses
Housing (include mixed use)
Housing (include mixed use)
Housing (include mixed use)
Housing (include mixed use)
Housing (include mixed use)
Private houses
Culture
Housing (include mixed use)
Culture
Private houses
Housing (include mixed use)
Culture
Housing (include mixed use)
Housing (include mixed use)
Housing (include mixed use)
Culture
Housing (include mixed use)
Housing (include mixed use)
Private houses
Housing (include mixed use)
Housing (include mixed use)
Housing (include mixed use)
Culture
Housing (include mixed use)
Housing (include mixed use)
Housing (include mixed use)
Private houses
Housing (include mixed use)
Housing (include mixed use)
Culture
Housing (include mixed use)
Private houses
Culture
Housing (include mixed use)
Culture
Culture
Culture
Housing (include mixed use)
Housing (include mixed use)
Projets
- Workshop2013–2013Chaumont-Gistoux










- Stables 2013–2014Bruxelles










- Herringbone2012–2012Bruxelles






























