Home
Repertory
Morales Finch
Warrington Crescent
- Projet
Warrington Crescent
- Architecte
Morales Finch
- Programe
- Refurbishment of an existing basement dwelling
- About
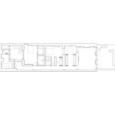
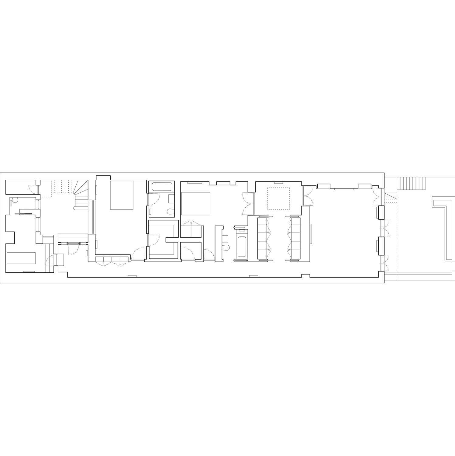
- The project involved the refurbishment of an existing basement dwelling, located within a listed, central London, Victorian terrace and backed by an extensive communal garden that is considered one of the best remaining examples of its kind.[...]
A series of unsympathetic incremental additions and modifications were initially removed, with the aim being to expose the original plan of the building wherever possible.
A spatial and decorative consistency was then reintroduced to the building, through the introduction of high quality but modest finishes.
Construction between August 2017 and February 2018.
- Typology
- Private houses
- Status
- Built
- Year of conception
- 2016
- Year of delivery
- 2018
- Total budget
- 500.000
- Stability
- Wyatt Carruthers and Jebb Ltd
- Special techniques
- Consolux M&E Consulting Ltd
- Others
Warrington Crescent
Londres
Plus d'informations
Morales Finch
Repertory
Exposition Virtuelle
Housing (include mixed use)
Housing (include mixed use)
Private houses
Housing (include mixed use)
Culture
Housing (include mixed use)
Private houses
Culture
Housing (include mixed use)
Culture
Housing (include mixed use)
Housing (include mixed use)
Housing (include mixed use)
Housing (include mixed use)
Housing (include mixed use)
Private houses
Private houses
Culture
Private houses
Private houses
Culture
Housing (include mixed use)
Housing (include mixed use)
Private houses
Private houses
Housing (include mixed use)
Private houses
Housing (include mixed use)
Housing (include mixed use)
Housing (include mixed use)
Private houses
Private houses
Housing (include mixed use)
Culture
Culture
Private houses
Housing (include mixed use)
Private houses
Housing (include mixed use)
Housing (include mixed use)
Housing (include mixed use)
Housing (include mixed use)
Private houses
Culture
Housing (include mixed use)
Housing (include mixed use)
Culture
Culture
Private houses
CulturePrivate houses
Private houses
Housing (include mixed use)
Culture
Housing (include mixed use)
Culture
Culture
Private houses
Culture
Culture
Private houses
Private houses
Culture
Private houses
Private houses
Housing (include mixed use)
Culture
Culture
Private houses
Private houses
Housing (include mixed use)
Housing (include mixed use)
Culture
Housing (include mixed use)
Housing (include mixed use)
Culture
Housing (include mixed use)
Projets
- Brookbank Road2017–2017Londres










- Blurton Road2016–2018Londres










- Upwood Road2016–2018Londres










- bstore furniture2012–2018Londres





























