Home
Repertory
V.O.
Creuse
- Projet
Creuse
- Architecte
V.O.
- Programe
- Full renovation of a typical Brussels house
- About
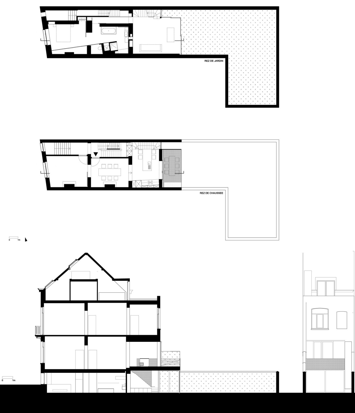
- The triplex takes advantage of the garden by orientating the living area towards it. The former basement-kitchen is completely refurbished and an extension allows enlarging the living room to the garden. A terrace situated on the roof of the living room is directly linked to the kitchen on the ground floor. The entire renovation aims at simplicity and respect of the building’s typology. Minor interventions on the main building work allow reducing the costs while special attention is given to the different perspectives and openings between areas. Looking for innovative and low-cost details gives a personal and refreshing touch to the project. The most representative illustration of this approach is the work on the guard rails, which are stamped through by means of rows of holes of different diameters allowing reinterpreting an industrial process in a more fun way, while maintaining a low cost. The choice of materials and their alternative uses (wood fibres panels, aluminium, wood, laminate mdf for the kitchen white on the one side and black on the other, sliding window frames on the frontage opening entirely the window bay. ..) bring in this traditional house much poetry, comfort, and an appealing link to contemporary interferences.[...]
- Typology
- Private houses
- Status
- Built
- Year of conception
- 2009
- Area
- 250
- Architects
- m architecture
Rue Creuse
1030 Bruxelles
Plus d'informations
Monsieur Pascal
Repertory
Exposition Virtuelle
Housing (include mixed use)
Housing (include mixed use)
Private houses
Culture
Housing (include mixed use)
Private houses
Culture
Housing (include mixed use)
Housing (include mixed use)
Private houses
Culture
Housing (include mixed use)
Culture
Culture
Housing (include mixed use)
Housing (include mixed use)
Culture
Housing (include mixed use)
Housing (include mixed use)
Culture
Private houses
Private houses
Housing (include mixed use)
Culture
Culture
Private houses
Private houses
Housing (include mixed use)
Housing (include mixed use)
Housing (include mixed use)
Housing (include mixed use)
Private houses
Housing (include mixed use)
Culture
Culture
Private houses
Housing (include mixed use)
Culture
Private houses
Housing (include mixed use)
Private houses
Private houses
Housing (include mixed use)
Private houses
Culture
Culture
Housing (include mixed use)
Culture
Housing (include mixed use)
Housing (include mixed use)
Private houses
Housing (include mixed use)
Private houses
Housing (include mixed use)
Private houses
Housing (include mixed use)
Housing (include mixed use)
Culture
Culture
Culture
Culture
Housing (include mixed use)Private houses
Culture
Private houses
Housing (include mixed use)
Private houses
Housing (include mixed use)
Private houses
Housing (include mixed use)
Culture
Housing (include mixed use)
Private houses
Private housesPrivate houses
Housing (include mixed use)
Private houses
Projets
- Rue des ailes 2020–2021Schaerbeek
- Materia Nova2018–2020Mons










- Pogge2018–2021Schaerbeek










- Walcourt2015Walcourt










- H2012–2019Bruxelles





























