Accueil
Répertoire
Atelier d’architecture Matador
Fives Cail
En association momentanée avec
- Projet
Fives Cail
- Architecte
Atelier d’architecture Matador
Daum Architectes
- Programme
- Construction de 44 logements
- À propos
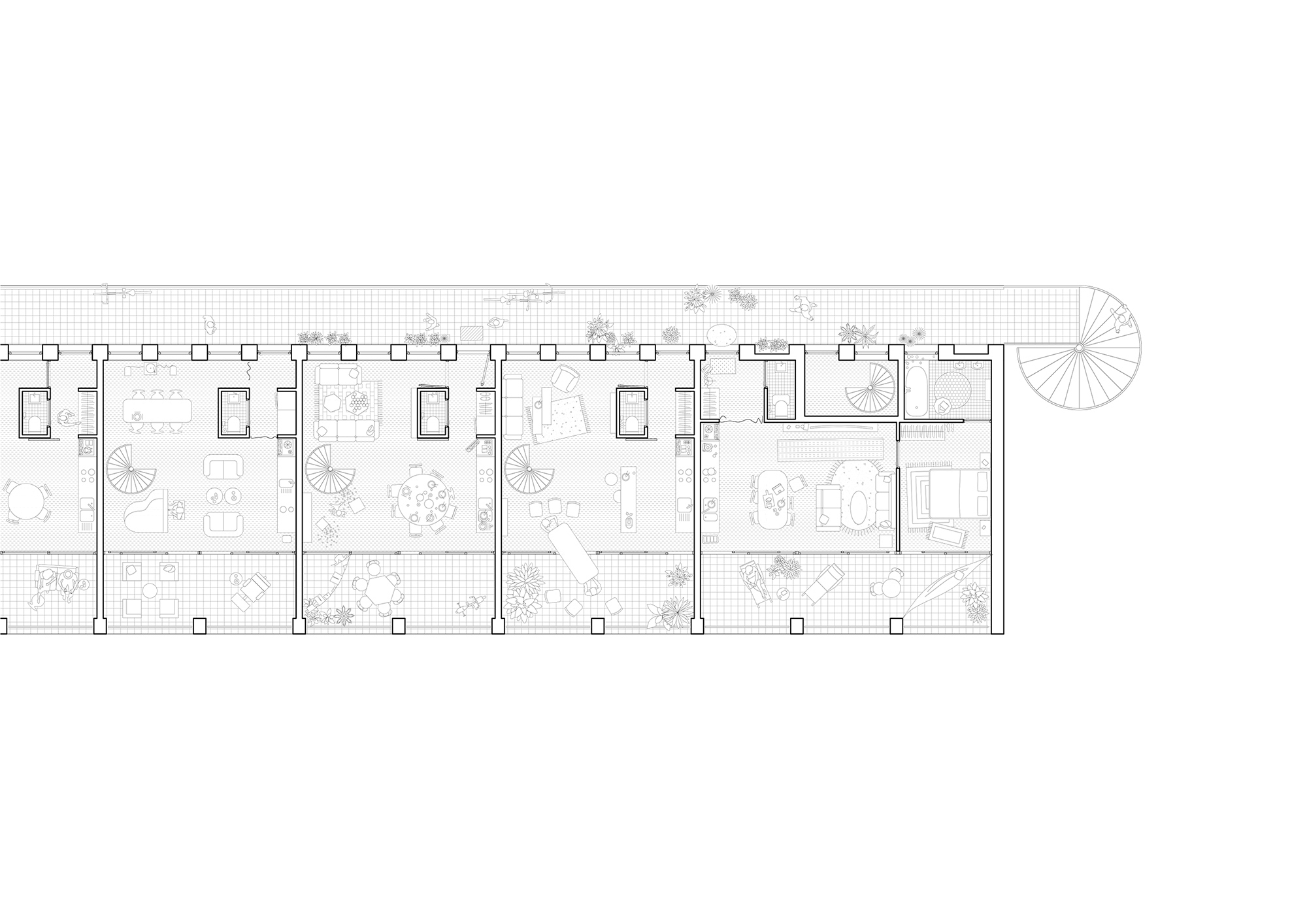
- La parcelle présente quelques singularités au regard de l’ensemble du site concerné par le projet de réhabilitation. Située à l’Ouest, elle appartient au grain des îlots d’habitation plutôt qu’à celui de la friche industrielle à proprement parler. L’ambiguïté de cet îlot, partagé entre l’habitat et l’industrie, pose la question des échelles, d’une part, celle du statut symbolique de l’entrée du site d’autre part.[...]
Plutôt qu’échelonner le bord d’îlot en gabarits multiples, le projet propose une ligne horizontale. Cette horizontale résonne par alternance avec la linéarité de la Bourse du travail. Elle solidifie les géométries à l’œuvre dans cet ensemble en reconversion, géométries relayées dans le traitement de l’espace public du boulevard de l’Usine et soutenues par les jardins linéaires.
A l’extrémité du nouvel immeuble horizontal, une articulation assure la prise en charge du mitoyen tout en ménageant un vide généreux qui permettra de maintenir des qualités de lumière pour les jardins des habitations voisines. Cette articulation dégage un espace d’angle que nous proposons de reverser dans l’espace public. L’immeuble vertical ménage la seconde entrée du site depuis la cour Ouest. Entre les deux entrées se tend un jardin linéaire semi-public.
- Typologie
- Logements multiples
- Statut
- Proposition
- Année de conception
- 2019-2022
- Maître d'ouvrage
- LMH
- Superficie
- 4400
Fives Cail
Lille
Plus d'informations
Atelier d’architecture Matador
Répertoire
Exposition Virtuelle
Maisons privées
Logements multiples
Logements multiples
Logements multiples
Logements multiples
Culture
Maisons privées
Culture
Logements multiples
Maisons privées
Logements multiples
Logements multiples
Culture
Logements multiples
Logements multiples
Culture
Maisons privées
Culture
Logements multiples
Maisons privées
Culture
Logements multiples
Maisons privées
Maisons privées
Maisons privées
Culture
Logements multiples
Maisons privées
Culture
Logements multiples
Logements multiples
Maisons privées
Culture
Logements multiples
Logements multiples
Logements multiples
Logements multiples
Maisons privées
Culture
Maisons privées
Logements multiplesMaisons privées
Logements multiples
Culture
Logements multiplesMaisons privées
Culture
Logements multiples
Maisons privées
Culture
Logements multiples
Culture
Maisons privées
Logements multiples
Maisons privées
Maisons privées
Logements multiples
Maisons privées
Culture
Culture
Culture
Logements multiples
Culture
Logements multiples
Logements multiples
Logements multiples
Maisons privées
Culture
Logements multiples
Culture
Culture
Logements multiples
Maisons privées
Maisons privées
Maisons privées
Maisons privées
Logements multiples
Projets
- Ecole du Boutte2020-2021Grâce-Hologne










- Galilée2018-2022Schaerbeek










- Ilot11A2017-2021–2021Lille










- Toit&Moi2016-2021–2021Ghlin






























