Accueil
Répertoire
Atelier d’architecture Matador
Galilée
En association momentanée avec
- Projet
Galilée
- Architecte
Atelier d’architecture Matador
Studio CAS
- Programme
- Extension et rénovation de l’Haute Ecole Galilée
- À propos
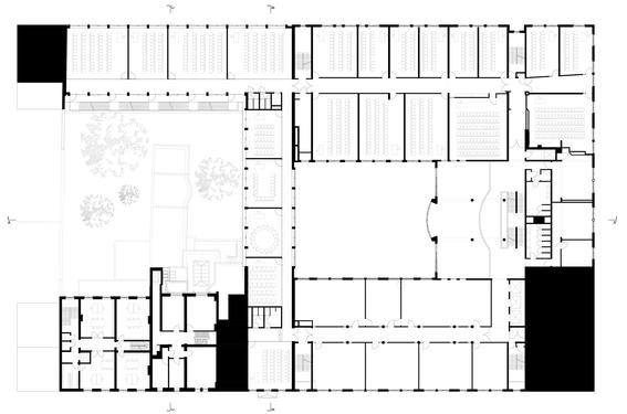
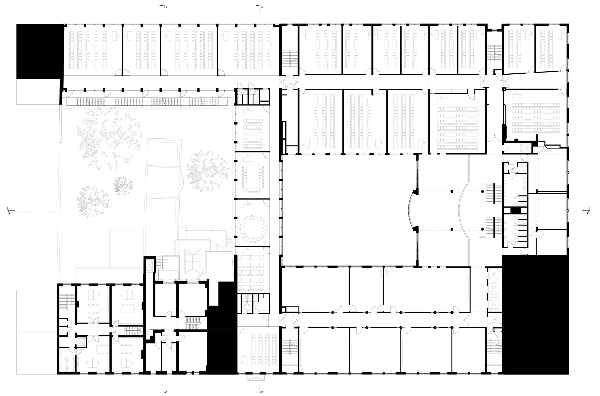
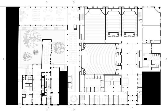
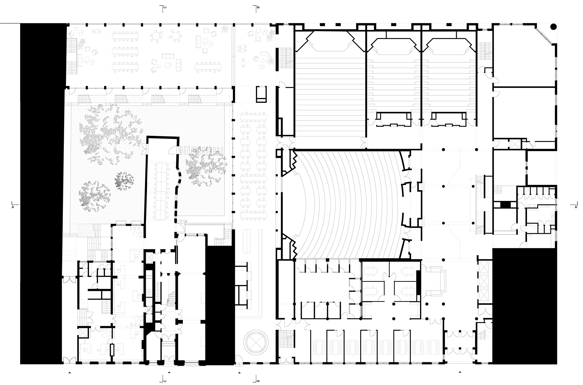
- EXTENSION[...]
L’extension proposée est bipartite. Une première aile de l’édifice comble la dent creuse de la rue de la poste. Elle crée une nouvelle adresse à la HEG et intensifie les relations de l’école de ce côté de la ville. Elle génère aussi un grand jardin en intérieur d’ilot, occupé, en son centre, par l’annexe du bâtiment classé.
REPARTITION
Les répartitions programmatiques, lisibles sur les plans, relèvent de logiques qui renforcent les positions de chacune des institutions tout en intensifiant les échanges et les mutualisations.
CONNEXIONS
La construction d’une aile depuis la rue Royale, jusqu’à la rue de la poste fluidifie les mouvements au sein du bâtiment existant et favorise les connexions avec l’extension. En effet, alors que les ailes ouest et est de l’édifice existant se terminaient en cul-de-sac, elles s’articulent désormais entre elles et avec le nouvel édifice.
FLEXIBILITÉ
La structure porteuse de l’extension garantit une flexibilité maximale des lieux intérieurs. Le projet proposé est donc facilement adaptable que ce soit dans le processus de conception, en concertation avec les différents intervenants (maitre de l’ouvrage, urbanisme, SIAMU, utilisateurs, etc.) qu’une fois l’édifice construit.
OUVERTURES
L’occupation des étages inférieurs de l’école par des programmes communs permet d’envisager une réelle interaction avec les espaces publics avoisinants.
- Typologie
- Éducation
- Statut
- En construction
- Année de conception
- 2018-2022
- Maître d'ouvrage
- Haute Ecole Galilée
- Superficie
- 20000
Schaerbeek
Plus d'informations
Atelier d’architecture Matador
Répertoire
Exposition Virtuelle
Culture
Logements multiples
Culture
Culture
Logements multiplesMaisons privées
Maisons privées
Logements multiples
Maisons privées
Maisons privées
Maisons privées
Logements multiples
Maisons privées
Logements multiples
Culture
Maisons privées
Culture
Logements multiples
Culture
Culture
Maisons privées
Logements multiples
Maisons privées
Logements multiples
Logements multiples
Logements multiples
Logements multiples
Maisons privées
Logements multiples
Logements multiples
Culture
Maisons privées
Logements multiples
Culture
Logements multiples
Logements multiples
Culture
Logements multiples
Maisons privées
Logements multiples
Maisons privées
Culture
Logements multiples
Logements multiples
Logements multiples
Logements multiples
Logements multiples
Maisons privées
Culture
Logements multiples
Maisons privées
Culture
Culture
Culture
Culture
Maisons privées
Maisons privées
Culture
Logements multiplesMaisons privées
Maisons privées
Maisons privées
Logements multiples
Maisons privées
Maisons privées
Culture
Logements multiples
Logements multiples
Culture
Culture
Logements multiples
Logements multiples
Culture
Maisons privées
Logements multiples
Logements multiples
Maisons privées
Projets
- Ecole du Boutte2020-2021Grâce-Hologne










- Fives Cail2019-2022Lille










- Ilot11A2017-2021–2021Lille










- Toit&Moi2016-2021–2021Ghlin






























