Accueil
Répertoire
B SLASH [ b / a r c h i t e c t s ]
LOCQ15
- Projet
LOCQ15
- Architecte
B SLASH [ b / a r c h i t e c t s ]
- Programme
- Type : démolition + reconstruction
Fonction : 8 appartements + commerces + toiture jardin
- À propos
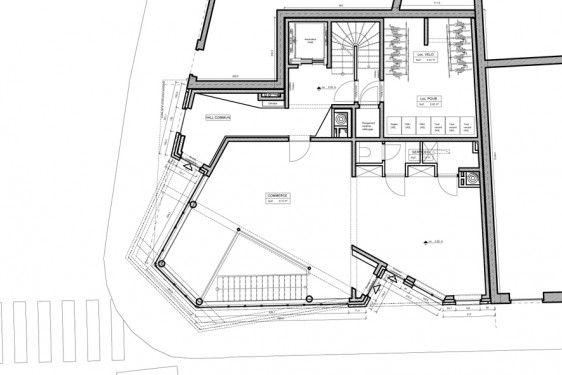
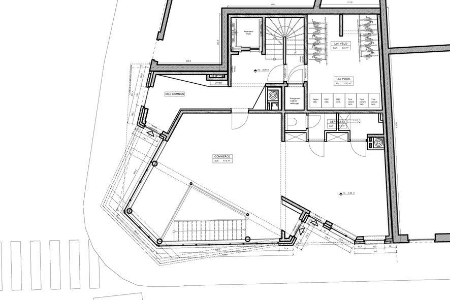
- Ce projet nait de la volonté de vouloir optimiser l’usage de la parcelle occupée par un immeuble de 6 logements et de 2 commerces et de la nécessité de devoir palier à la vétusté de celui-ci. La question de la démolition est donc devenue rapidement inévitable et heureusement soutenue aux différents niveaux décisionnels malgré le chevauchement de 2 zones de protection patrimoniale dans lesquelles est inscrit le projet. L’étude a d’abord porté sur le repositionnement des entrées et de la circulation verticale. Viennent ensuite s’y greffer 8 logements et une surface commerciale. Ces 8 logements 1 chambre répondent à la demande de logements de petite taille de la Ville de Bruxelles tandis que la surface commerciale, qui s’étend également sur une partie du sous-sol, ponctue et anime l’angle de l’îlot. Un jardin rendu accessible en toiture accueillera les résidents avec un aménagement paysager assez dégagé et en partie dominé par un volume entièrement vitré et fermé. Les plis proposés par la volumétrie du projet donnent le rythme des ouvertures, qui se décalent suivant une trame et des modules de châssis bien définis, et indiquent les entrées distinctes de chaque affectation. Ce désordre mesuré est progressif. Enfin, la robustesse de la brique et la clarté du verre répondent logiquement à des besoins internes et externes.[...]
- Typologie
- Logements multiples
- Statut
- En construction
- Année de conception
- 2012
- Année de livraison
- 2015
- Maître d'ouvrage
- Privé / Private
- Superficie
- 1.000
- Stabilité
- PEC - Piron Etudes en Construction
Quartier Sainte Catherine
1000 Bruxelles
Plus d'informations
B SLASH [ b / a r c h i t e c t s ]
Répertoire
Exposition Virtuelle
Logements multiples
Culture
Maisons privées
Logements multiples
Logements multiples
Culture
Culture
Logements multiples
Logements multiples
Maisons privées
Maisons privées
Logements multiples
Maisons privées
Maisons privées
Logements multiples
Maisons privées
Maisons privées
Logements multiples
Maisons privéesMaisons privées
Logements multiples
Logements multiples
Maisons privées
Logements multiples
Logements multiplesMaisons privées
Maisons privées
Culture
Maisons privées
Maisons privées
Logements multiples
Culture
Culture
Logements multiples
Maisons privées
Logements multiples
Culture
Culture
Culture
Logements multiples
Logements multiples
Logements multiples
Culture
Logements multiples
Logements multiples
Culture
Logements multiples
Maisons privées
Logements multiples
Culture
Logements multiples
Maisons privées
Logements multiples
Logements multiples
Maisons privées
Logements multiples
Logements multiples
Culture
Maisons privées
Maisons privées
Culture
Culture
Maisons privées
Culture
Logements multiples
Logements multiples
Logements multiples
Logements multiples
Maisons privées
Maisons privées
Logements multiples
Culture
Maisons privées
Culture
Culture
Culture
Culture
Projets
- COM452012–2013Walhain










- ARS MUSICA2011–2011Bruxelles






























