Accueil
Répertoire
Hervé Lucas architecte
Maison
- Projet
Maison
- Architecte
Hervé Lucas architecte
- Programme
- Maison unifamiliale
- À propos
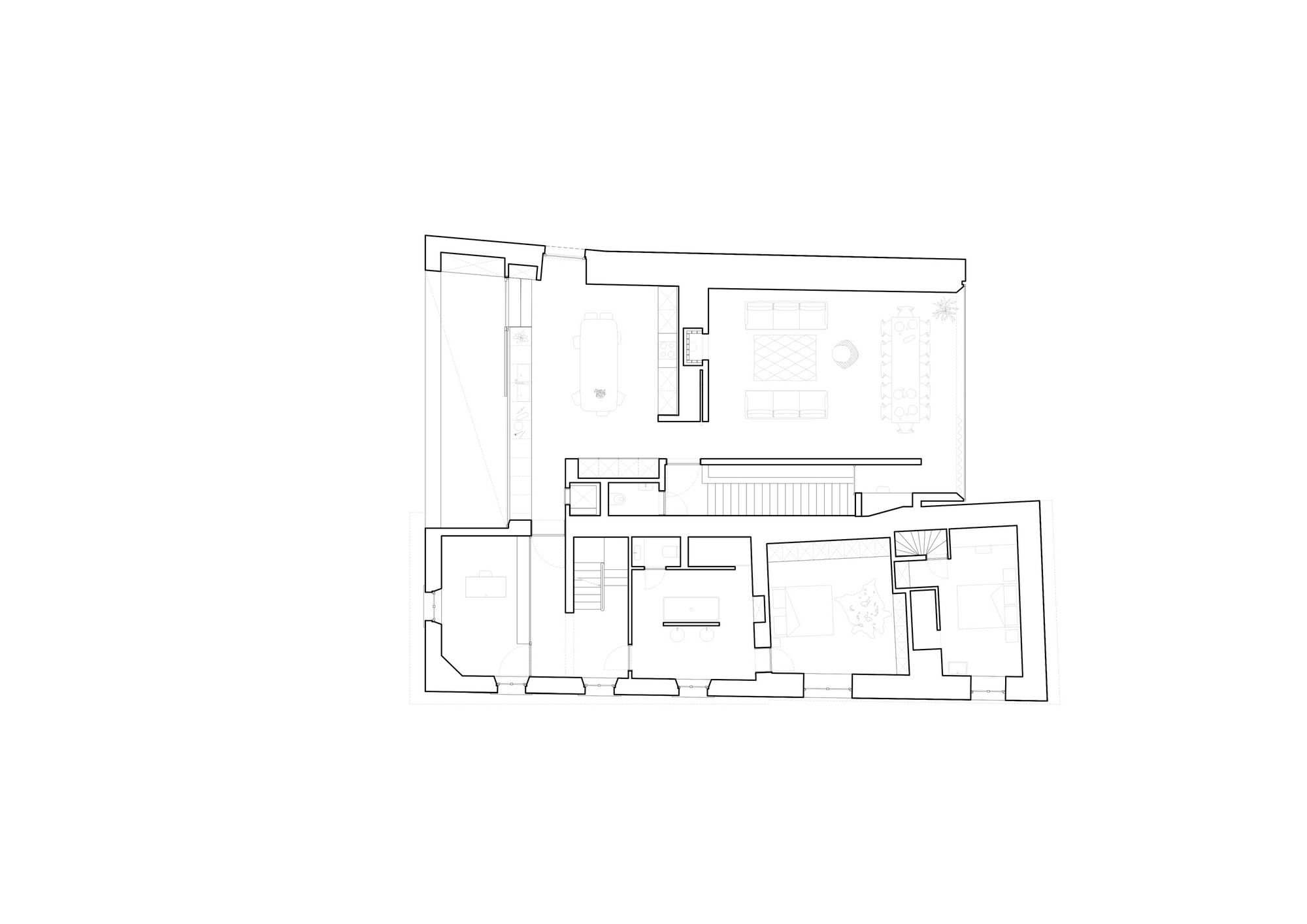
- Rénovation et extension d'une ferme ardennaise.[...]
Première maison du hameau, elle prend forme au fil de son histoire via une succession de transformations. L'intervention propose de poursuivre et achever ce lent processus entamé il y a près de deux siècles, et reliant un intérieur initialement replié sur lui-même, au territoire forestier dans lequel la maison s'inscrit. Le tracé de l'extension correspond à celui de l'ancienne grange.
La pierre employée pour les murs extérieurs est récupérée des murs préexistants non préservés.
La répartition intérieure des espaces place de part et d'autre d'une nouvelle bande de service, des espaces au plan ouvert d'un coté, et des pièces introverties de l'autre.
- Typologie
- Maisons privées
- Statut
- Construit
- Année de conception
- 2018
- Architectes
- Didier Brandt - Diip architectes
Vielsalm
Plus d'informations
Hervé Lucas architecte
Répertoire
Exposition Virtuelle
Culture
CultureMaisons privées
Logements multiples
Maisons privées
Logements multiples
Maisons privées
Logements multiples
Maisons privées
Maisons privées
Logements multiples
Logements multiplesMaisons privées
Logements multiples
Logements multiples
Maisons privées
Culture
Maisons privées
Maisons privées
Logements multiples
Maisons privées
Culture
Logements multiples
Logements multiples
Logements multiples
Maisons privées
Culture
Maisons privées
Logements multiples
Culture
Culture
Culture
Culture
Logements multiples
Logements multiples
Culture
Maisons privées
Maisons privées
Logements multiples
Logements multiples
Logements multiples
Logements multiples
Logements multiples
Culture
Logements multiples
Culture
Logements multiples
Culture
Logements multiples
Culture
Maisons privées
Maisons privées
Logements multiples
Maisons privées
Logements multiples
Maisons privées
Logements multiples
Maisons privées
Logements multiples
Logements multiples
Culture
Logements multiples
Logements multiples
Maisons privées
Logements multiples
Maisons privées
Culture
Culture
Culture
Maisons privées
Culture
Logements multiples
Logements multiples
Maisons privées
Culture
Maisons privées
Culture




















