Accueil
Répertoire
ICA
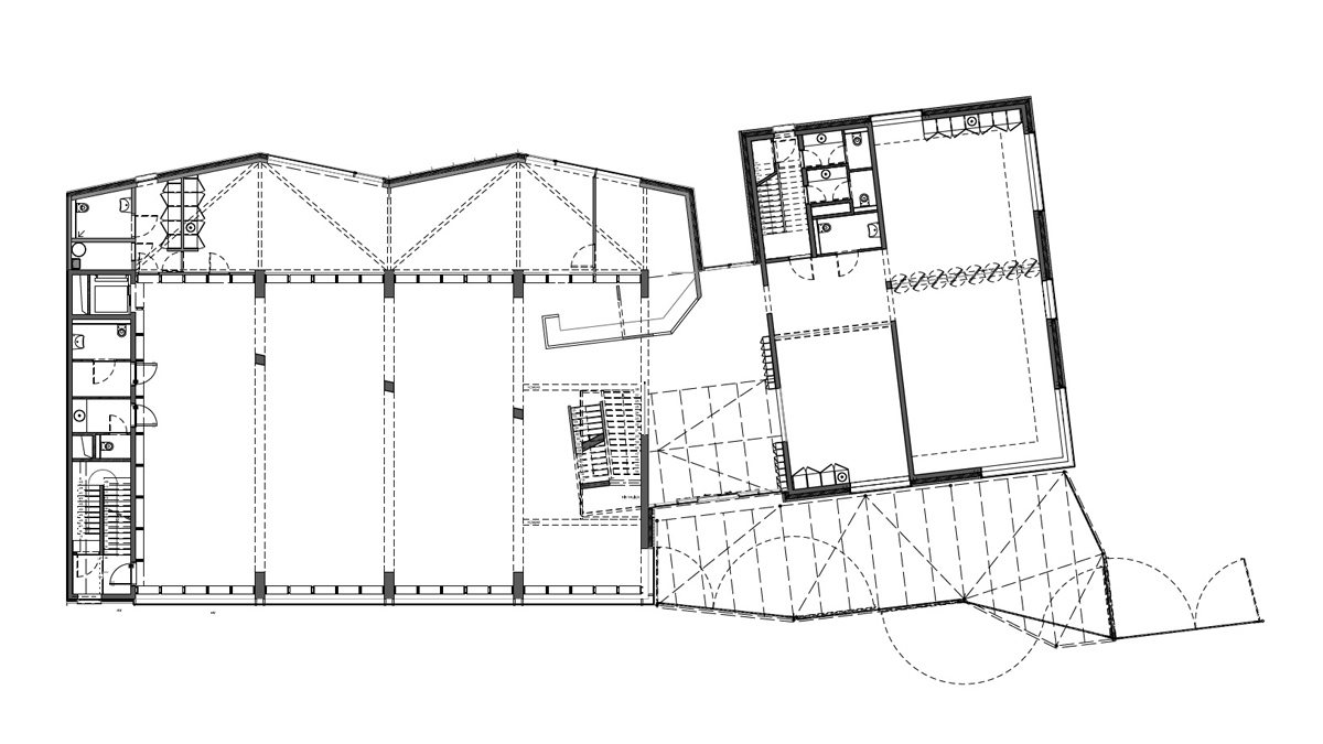
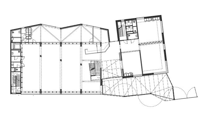
Construction de la bibliothèque francophone de Molenbeek
En association momentanée avec
- Projet
Construction de la bibliothèque francophone de Molenbeek
- Architecte
ICA
Bureau d'Études en Architectures Urbaines
- Typologie
- Culture
- Statut
- Construit
- Année de livraison
- 2021
- Maître d'ouvrage
- Commune de Molenbeek-St-Jean, service travaux publics
- Budget total
- 2694283
- Superficie
- 1500
Rue des Béguines
Molenbeek-Saint-Jean
Plus d'informations
ICA
Répertoire
Exposition Virtuelle
Maisons privées
Logements multiples
Maisons privées
Culture
Logements multiples
Culture
Culture
Logements multiples
Logements multiples
Logements multiples
Logements multiples
Culture
Logements multiples
Logements multiples
Culture
Logements multiples
Culture
Maisons privées
Logements multiples
Culture
Logements multiples
Logements multiples
Logements multiples
Maisons privées
Maisons privées
Maisons privées
Logements multiples
Logements multiples
Logements multiples
Logements multiples
Maisons privées
Culture
Culture
Maisons privées
Maisons privées
Culture
Logements multiples
Culture
Culture
Maisons privées
Logements multiples
Culture
Maisons privéesMaisons privées
Logements multiples
Maisons privées
Maisons privées
Culture
Maisons privées
Logements multiples
Culture
Maisons privées
CultureMaisons privées
Logements multiples
Maisons privées
Logements multiples
Maisons privées
Logements multiples
Maisons privées
Logements multiples
Culture
Maisons privées
Culture
Culture
Logements multiples
Logements multiples
Culture
Logements multiples
Maisons privées
Logements multiples
Culture
Logements multiples
Logements multiples
Maisons privées
Logements multiples
Maisons privées
Projets
- MOSA BALLET SCHOOL2019–2022liège








- Retour à la terre2018–2021Rwamishiba










- Le parc de la Jonction2017–2022Bruxelles








- Crèche Sainte-Walburge 2016–2021Liège








- Phoenix2016–2020Auderghem




























