Accueil
Répertoire
Karbon' architecture et urbanisme
362BGJ
En association momentanée avec
- Projet
362BGJ
- Architecte
Karbon' architecture et urbanisme
Label Architecture
- Programme
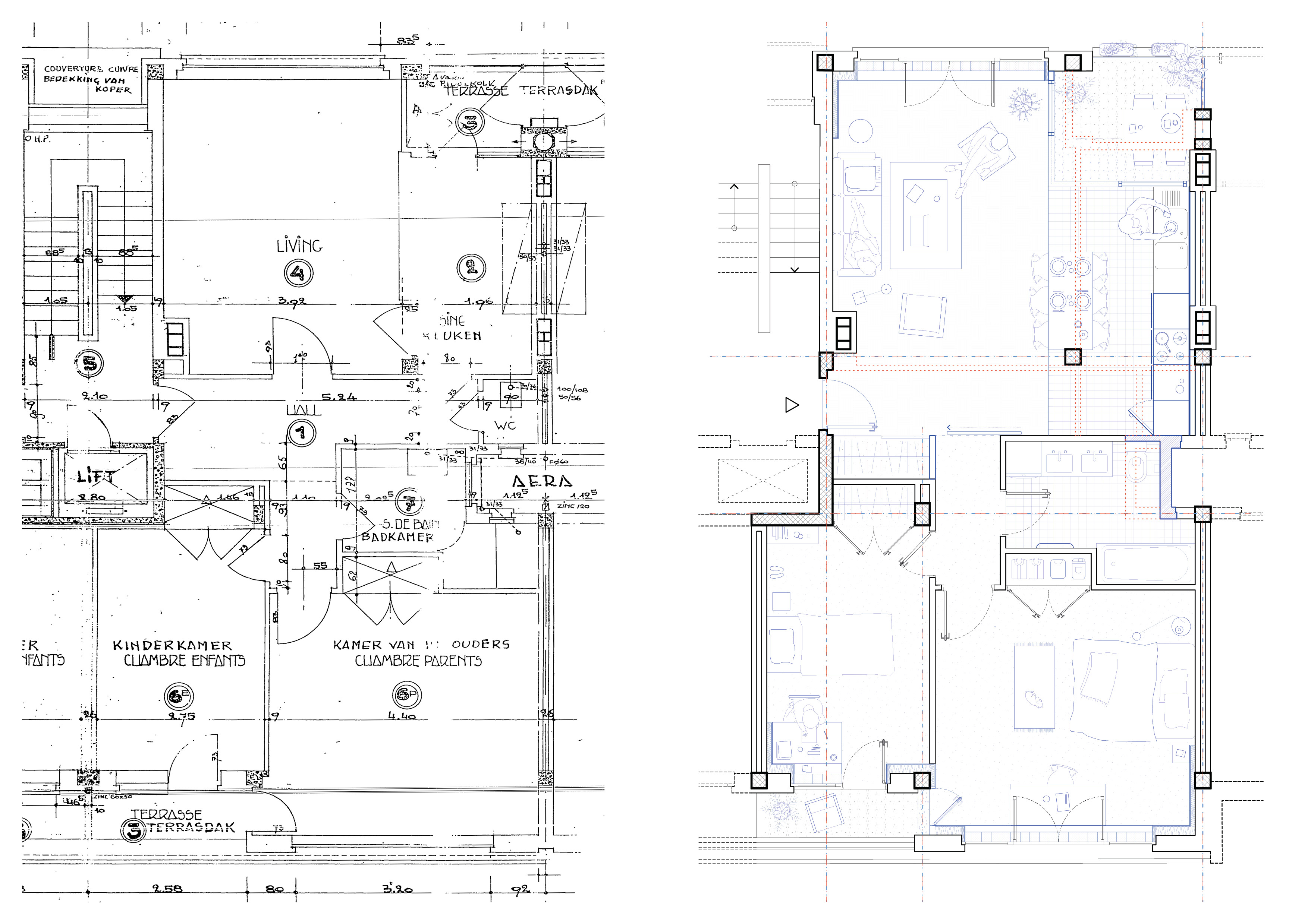
- Rénovation complète sur 7 niveaux - bâtiments, jardins et abords inclus - d'un immeuble composite construit dans les années 1960. La finesse du dessin de rénovation des appartements permet de conserver l’ensemble des typologies dans une démarche de circularité avancée.[...]
- À propos
- Construit en 1961 en face de l’ancienne école de la gendarmerie d’Ixelles (actuel Usquare), cet immeuble est d’abord pensé pour loger « les gendarmes mariés » qui s’exercent de l’autre côté de la rue. L’édifice vient compléter un îlot composite qui est définitivement clos en 1977. La curiosité de cette construction tient à sa typologie retournée – les entrées se situent toutes en cœur d’îlot par le biais d’une venelle intérieure – qui en fait un îlot traversant dans la longueur.[...]
Après quelques années d’occupation précaire – permettant un travail précis d’inventaire de l’ensemble des matériaux – puis d’une période de tests grandeur nature dans les différentes typologies d’appartements, le bâtiment fait aujourd’hui l’objet d’une rénovation mesurée en tant que projet pilote en économie circulaire et réemploi. Un processus réfléchi permettant de vérifier les hypothèses de projet en cours d’avancement. La démarche s’appuie sur la formule de K. Berghmans et B. Robles Hidalgo « Maintenance as architecture » en affirmant qu’au lieu de se concentrer sur la conception et l’innovation, la pratique architecturale actuelle pourrait être conçue comme l’entretien et le fait de « prendre soin » des bâtiments existants.
Cet acte de sobriété par le choix d’interventions ciblées et réfléchies est un engagement économique et environnemental.
- Typologie
- Logements multiples
- Statut
- En construction
- Année de conception
- 2020-2026
- Année de livraison
- 2026
- Maître d'ouvrage
- SLRB-BGHM / SCRL BinHôme
- Budget total
- 11 000 000
- Stabilité
- NEY Partners Wow
- Techniques spéciales
- MK Engineering
- Paysagiste
- Carbonifère
Boulevard Général Jacques
1050 Ixelles
Plus d'informations
Karbon' architecture et urbanisme
Répertoire
Exposition Virtuelle
Maisons privées
Culture
Culture
Maisons privées
Maisons privées
Culture
Maisons privées
Culture
Maisons privées
Maisons privées
Maisons privées
Maisons privéesMaisons privées
Logements multiples
Culture
Maisons privées
Culture
Maisons privées
Maisons privées
Logements multiples
Logements multiples
Logements multiples
Culture
Maisons privées
Logements multiples
Logements multiples
Maisons privées
Logements multiples
Logements multiples
Culture
Culture
Culture
Logements multiples
Logements multiples
Maisons privées
Culture
Maisons privées
Culture
Logements multiples
Logements multiples
Maisons privées
Maisons privéesMaisons privées
Culture
Logements multiples
Logements multiples
Logements multiples
Logements multiples
Culture
Culture
Logements multiples
Maisons privées
Logements multiples
Logements multiples
Logements multiples
Maisons privées
Culture
Logements multiples
Maisons privées
Culture
Culture
Logements multiples
Maisons privées
Culture
Logements multiples
Logements multiples
Logements multiples
Maisons privées
Culture
Logements multiples
Logements multiples
Logements multiples
Logements multiples
Logements multiples
Logements multiples
Logements multiples
Culture




























































