Accueil
Répertoire
Morales Finch
Upwood Road
- Projet
Upwood Road
- Architecte
Morales Finch
- Programme
- Complete refurbishment of an archetypal 60’s, 3 storey home
- À propos
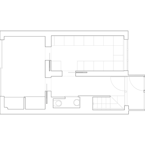
- The refurbishment of an archetypal 60’s, 3 storey, home sought to take advantage of the freedom that its original concrete frame offered, providing a more suitable and flexible spatial arrangement for its inhabitants.[...]
Free of internal structural elements, and benefitting from a dual aspect, a series of open plans are intended to remain able to adapt to future changes in the owners circumstances, with the only fixed element of the building being the staircase that serves all 3 floors.
With a limited budget available, a robust and consistent palette of materials and details were introduced throughout, meaning that rooms can adopt over time to different purposes, as and when required.
Constructed between August 2017 and February 2018.
- Typologie
- Maisons privées
- Statut
- Construit
- Année de conception
- 2016
- Année de livraison
- 2018
- Budget total
- 50.000
Upwood Road
SE12 8AA Londres
Plus d'informations
Morales Finch
Répertoire
Exposition Virtuelle
Logements multiples
Culture
Logements multiples
Logements multiples
Logements multiples
Culture
Logements multiplesMaisons privées
Logements multiples
Maisons privées
Logements multiples
Logements multiples
Logements multiples
Maisons privées
Maisons privées
Maisons privées
Maisons privées
Maisons privées
Maisons privées
Logements multiples
Logements multiples
Logements multiples
Logements multiples
Maisons privées
Culture
Maisons privées
Culture
Culture
Maisons privées
Culture
Maisons privées
Culture
Maisons privées
Maisons privées
Culture
Culture
Logements multiples
Culture
Logements multiples
Maisons privées
Maisons privées
Maisons privées
Logements multiples
Logements multiples
Logements multiples
Logements multiples
Logements multiples
Culture
Logements multiples
Culture
Culture
Logements multiples
Culture
Logements multiples
Maisons privées
Culture
Culture
Logements multiples
Maisons privées
Logements multiples
Maisons privées
Logements multiples
Logements multiples
Maisons privées
Culture
Logements multiplesMaisons privées
Culture
Culture
Culture
Logements multiples
Maisons privées
Logements multiples
Logements multiples
Logements multiples
Culture
Maisons privées
Projets
- Brookbank Road2017–2017Londres










- Warrington Crescent2016–2018Londres










- Blurton Road2016–2018Londres










- bstore furniture2012–2018Londres






























