Accueil
Répertoire
TRAIT norrenberg & somers
Crèche à Laeken
- Projet
Crèche à Laeken
- Architecte
TRAIT norrenberg & somers
- Programme
- Construction passive d'une maison d'enfants (48 enfants) et d'une salle polyvalente à Laeken
- À propos
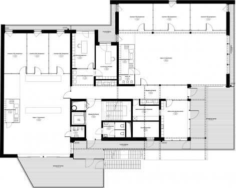
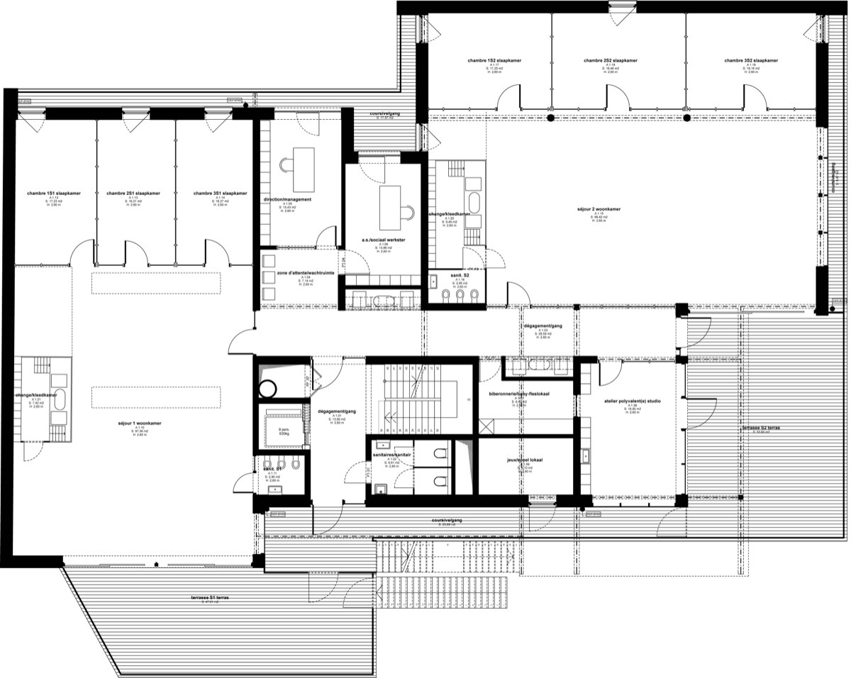
- Le projet est situé en intérieur d’îlot, entre des jardins privés et d’anciens entrepôts transformés en centre pour jeunes et maison des enfants. Le programme est celui d’une crèche pour 48 enfants ainsi qu’une salle polyvalente et l’aménagement des espaces extérieurs.[...]
La crèche s’installe en duplex sur le rez-de-chaussée qui rassemble les parties publiques et techniques du programme. Elle s’offre ainsi une grande sécurité et profite d’un ensoleillement important, de vues et de larges terrasses pour les enfants. Elle est perçue comme une entité indépendante et protégée de son environnement extérieur. L’espace public est prolongé au rez-de-chaussée par l’implantation de la salle polyvalente.
Le projet et l’aménagement du site créent un espace calme, qui favorise les rencontres et les échanges entre les utilisateurs d’âges très différents du site.
La crèche est composée de 3 séjours de 16 enfants. Les espaces communs sont implantés au centre du duplex. Dans chaque section, les dortoirs sont orientés au Nord, tandis qu’au Sud les terrasses extérieures s’implantent dans la continuité des séjours.
- Typologie
- Éducation
- Statut
- Non construit
- Année de conception
- 2010-2012
- Année de livraison
- 2013
- Maître d'ouvrage
- Ville de Bruxelles
- Budget total
- 2.790.000 €
- Budget au m2
- 1.560 €
- Superficie
- 1.600 m2
- Stabilité
- DELVAUX Ingénieurs et Architectes
- Techniques spéciales
- DETANG engineering
Place Willems et rue Comtesse de Flandre
1020 Bruxelles
Plus d'informations
TRAIT norrenberg & somers
Répertoire
Exposition Virtuelle
Logements multiples
Culture
Logements multiples
Logements multiples
Logements multiples
Logements multiples
Culture
Logements multiples
Maisons privéesMaisons privées
Culture
Logements multiples
Logements multiples
Culture
Maisons privées
Logements multiples
Culture
Maisons privées
Logements multiples
Logements multiples
Maisons privées
Culture
Culture
Culture
Culture
Logements multiples
Culture
Maisons privées
Logements multiples
Logements multiples
Culture
Maisons privées
Maisons privées
Maisons privées
Maisons privées
Logements multiples
Logements multiples
Logements multiples
Logements multiples
Logements multiples
Logements multiples
Maisons privées
Culture
Logements multiplesMaisons privées
Maisons privées
Maisons privées
Culture
Maisons privées
Maisons privées
Culture
Maisons privées
Logements multiples
Logements multiples
Logements multiples
Culture
Maisons privées
Logements multiples
Maisons privées
Logements multiples
Culture
Maisons privées
Logements multiples
Maisons privées
Logements multiples
Logements multiples
Culture
Culture
Logements multiples
Logements multiples
Culture
Maisons privées
Maisons privées
Logements multiples
Culture
Culture
Maisons privées
Projets
- Ecole fondamentale et logements sociaux à Molenbeek-Saint-Jean2011–2013Bruxelles








- Logements sociaux à Grez-Doiceau2009-2011–2013Grez-Doiceau










- Ecole de Théâtre IAD à Louvain-la-Neuve2008-2011–2013Louvain-la-Neuve










- Collège Saint-François d'Assise à Tubize2006–2011Tubize






























