Accueil
Répertoire
TRAIT norrenberg & somers
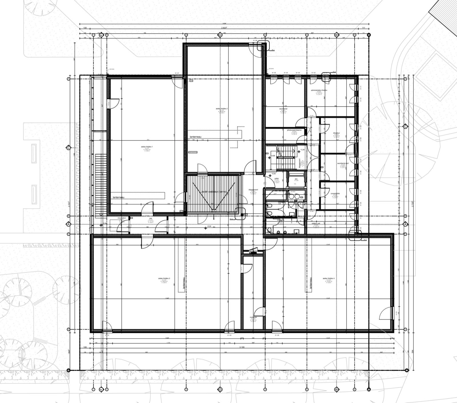
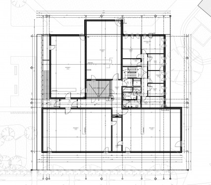
Ecole de Théâtre IAD à Louvain-la-Neuve
- Projet
Ecole de Théâtre IAD à Louvain-la-Neuve
- Architecte
TRAIT norrenberg & somers
- Programme
- Construction très basse énergie de 5 ateliers de théâtre et de locaux administratifs
- À propos
- Le projet est circonscrit sur un terrain carré dont les 4 côtés sont des espaces publics divers: piétonniers, terrain de basket, arbres… Le programme prévoyait de construire trois niveaux sur la moitié de la parcelle et de réserver l’autre moitié au parking.[...]
Compte tenu de la hauteur très importante des ateliers de théâtre, nous avons proposé de décaler un niveau au-dessus du parking et de marquer deux porte-à-faux importants pour les ateliers. Le projet, implanté entre le centre sportif, la piscine, une ancienne ferme brabançonne et des logements d'étudiants, trouve ainsi une échelle et une expression contemporaines sans heurter les voisins d'occupation et de gabarits très divers.
La structure est en béton jusqu'au niveau haut du rez-de-chaussée et ensuite entièrement en bois, avec des caissons bois à grandes portées. Les parements sont en bois afzélia et en briques collées. Le bâtiment est passif, excepté certains composants spécifiques (châssis…).
- Typologie
- Éducation
- Statut
- Non construit
- Année de conception
- 2008-2011
- Année de livraison
- 2013
- Maître d'ouvrage
- IAD asbl
- Budget total
- 2.200.000 €
- Budget au m2
- 1.100 €
- Superficie
- 2000 m2
- Stabilité
- DELVAUX ingénieurs et architectes
- Techniques spéciales
- DETANG engineering
- Acoustique
- ATS
Rue de la Saint-Grégoire
1348 Louvain-la-Neuve
Plus d'informations
TRAIT norrenberg & somers
Répertoire
Exposition Virtuelle
Logements multiples
Logements multiples
Logements multiples
Logements multiples
Maisons privéesMaisons privées
Culture
Maisons privées
Maisons privées
Maisons privées
Logements multiples
Maisons privées
Logements multiples
Culture
Culture
Logements multiples
Logements multiples
Maisons privées
Culture
Culture
Logements multiples
Culture
Maisons privées
Logements multiples
Logements multiples
Logements multiples
Culture
Logements multiples
Logements multiples
Culture
Culture
Culture
Maisons privées
Culture
Maisons privées
Maisons privées
Logements multiples
CultureMaisons privées
Maisons privées
Logements multiples
Logements multiples
Culture
Logements multiples
Maisons privées
Culture
Culture
Logements multiples
Logements multiples
Culture
Maisons privées
Culture
Logements multiples
Maisons privées
Logements multiples
Logements multiples
Logements multiples
Maisons privées
Maisons privées
Logements multiples
Maisons privées
Maisons privées
Maisons privées
Culture
Logements multiples
Logements multiples
Maisons privées
Maisons privées
Logements multiples
Culture
Logements multiples
Logements multiples
Culture
Logements multiples
Maisons privées
Logements multiples
Culture
Projets
- Ecole fondamentale et logements sociaux à Molenbeek-Saint-Jean2011–2013Bruxelles








- Crèche à Laeken2010-2012–2013Bruxelles










- Logements sociaux à Grez-Doiceau2009-2011–2013Grez-Doiceau










- Collège Saint-François d'Assise à Tubize2006–2011Tubize





























