Accueil Fleche-texte-grisExpos Fleche-texte-gris Logements multiples Fleche-texte-gris Maison Passion I

Logements multiples

Maison Passion I

corbacreative

Programme
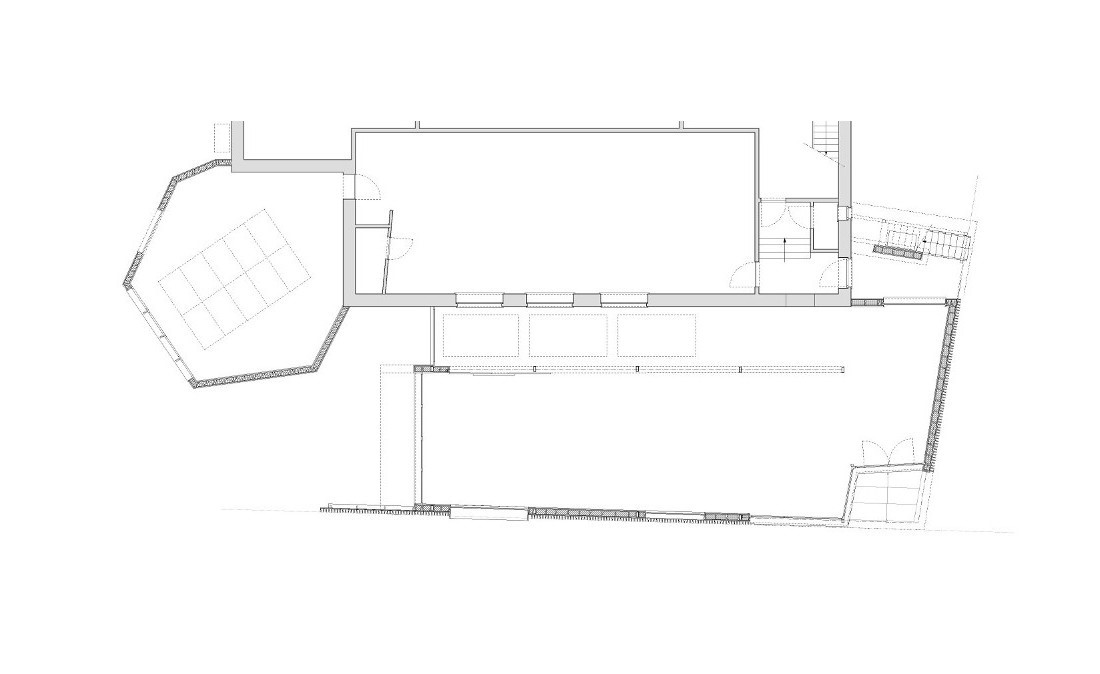
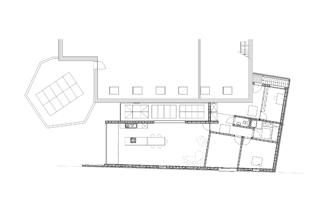
Le programme du bâtiment concerne une salle d'exposition au rez et l'aménagement d'un appartement à l'étage.
À propos
Le projet tente d'aborder le thème de la peau dans la reconstruction plastique d'un lieu.

L'intervention nécessite une proposition homogène qui redéfinit le rapport de l'image de la maison à la rue. Située au bord d'une voie fort fréquentée, la façade en bardage bois est utilisé comme un mur anti-bruit. La façade, par ses fines lames verticales de bois ajourées est utilisée comme un écran plus ou moins translucide enveloppant le bâtiment.

Le voile se soulève doucement pour indiquer l'entrée principale.
[...]
Statut
Construit
Année de conception
2009
Année de livraison
2011
Maître d'ouvrage
Satef sa

Chaussée de Dinant 1462
5020 Namur

Plus d'informations
corbacreative

Répertoire

Newsletter

s'inscrire

Historique de nos newsletters

WBA

Place Sainctelette 2
1080 B - Bruxelles


T +32 2 421 83 72
contact@wbarchitectures.be

back to top
Concept & Design : Salutpublic | Développement : Bien à vous