Accueil Fleche-texte-grisExpos Fleche-texte-gris Maisons privées Fleche-texte-gris Xhendremael

Maisons privées

Xhendremael

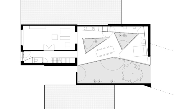
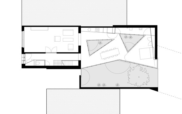
ANORAK

Programme
Réaménagment d'une habitation existante, extension
Statut
Construit
Année de conception
2006
Année de livraison
2010


Liège

Plus d'informations
ANORAK

Répertoire

Newsletter

s'inscrire

Historique de nos newsletters

WBA

Place Sainctelette 2
1080 B - Bruxelles


T +32 2 421 83 72
contact@wbarchitectures.be

back to top
Concept & Design : Salutpublic | Développement : Bien à vous