Accueil Fleche-texte-grisExpos Fleche-texte-gris Maisons privées Fleche-texte-gris transformation MSA

Maisons privées

transformation MSA

Martiat+Durnez Architectes

Programme
Extension pour une chambre et point d’eau
À propos
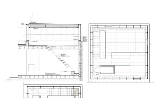
Présentation du projet existant:
Le terrain se situe en bord de village, dans une zone d’habitat rural d’intérêt paysager. La végétation est dense, le relief structurant. La maison est partiellement enfouie dans le sol pour conserver au maximum le talus. Les niveaux se superposent, décalés suivant les fonctions, pour coller au relief existant.
La volumétrie simple et massive permet de conserver au maximum l’ouverture paysagère.
Les niveaux en contact avec les terres sont cimentés pour minimiser leur impact. Le volume supérieur est bardé de bois. Le volume supérieur se fond dans la végétation. Le traitement élémentaire du projet vise une expression minimum pour s’intégrer à l’environnement.

Présentation de l'intervention de 2020:
L’extension se positionne dans la lignée du projet initial et se développe en hauteur, à l’arrière du bâtiment.
Le matériau de parement est choisit pour être dans la même démarche expressive que le projet initial (expression minimum et intégration à l’environnement), prévu en un seul matériau, du vitrage.
Matériau visuellement léger et qui pourrait réfléchir l’environnement direct essentiellement végétal.
[...]
Statut
Construit
Année de conception
2019
Année de livraison
2020
Maître d'ouvrage
M et Mme Sabitoni-Martiat

Route de Bienonsart 195b
4520 Huccorgne

Plus d'informations
Martiat+Durnez Architectes

Répertoire

Newsletter

s'inscrire

Historique de nos newsletters

WBA

Place Sainctelette 2
1080 B - Bruxelles


T +32 2 421 83 72
contact@wbarchitectures.be

back to top
Concept & Design : Salutpublic | Développement : Bien à vous